Szeregowiec Zieleniewo 148 m2 z garażem
Zieleniewo gm. Kobylanka Pokaż na mapie ›
Dodane: Piątek, 06 Luty, 2026 16:37
740 000 zł
5564 zł/m2
Szczegóły ogłoszenia
- Kategoria: Domy / Sprzedaż
- Powierzchnia:133 m2
- Liczba pokoi:4 pokoje
- Pow. działki:250 m2
- Rynek:Pierwotny
- Rok budowy:2026
- Sprzedaż:Pośrednik
- Cena: 740 000 zł / 5564 zł/m2
Opis oferty
Na sprzedaż dom w zabudowie szeregowej – Zieleniewo, 148,21 m²,garaż, ogród, blisko jeziora Miedwie
Zieleniewo | 148,21 m² | Garaż | Ogród | Stan deweloperski | 300 m
od jeziora Miedwie
Na sprzedaż nowoczesny dom w zabudowie szeregowej o powierzchni
użytkowej 147,59 m², zlokalizowany w Zieleniewie – spokojnej
miejscowości tuż przy jeziorze Miedwie. Inwestycja jest w trakcie
budowy. Budynek zostanie oddany w stanie deweloperskim, co daje
możliwość wykończenia wnętrza według własnych potrzeb.
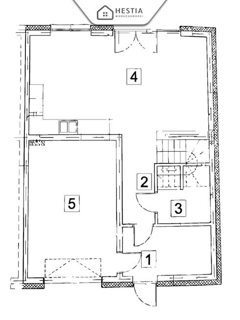
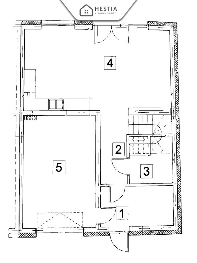
Rozkład pomieszczeń:
Parter:
wiatrołap z miejscem na szafę
przestronny salon z aneksem kuchennym i wyjściem do ogrodu
toaleta dla gości
garaż w bryle budynku
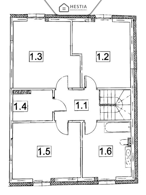
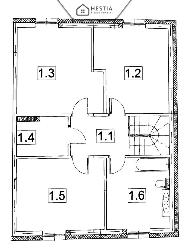
Piętro:
3 sypialnie
garderoba
duża łazienka
korytarz
Dodatkowe informacje:
ogrzewanie gazowe (możliwość zamontowania pompy ciepła)
duże przeszklenia zapewniające dobre doświetlenie wnętrz (okna
trzyszybowe)
prywatny ogródek
miejsce postojowe przed budynkiem
Lokalizacja:
spokojna okolica z dostępem do terenów rekreacyjnych
300 metrów do jeziora Miedwie
10 minut do Stargardu, 20 minut do Szczecina
dobre połączenie drogowe
Powierzchnia działek od 215 m2 do 460m2
Za dodatkową opłatą istnieje możliwość zamontowania pompy
ciepła zamiast tradycyjnego ogrzewania gazowego.
Dom idealny dla rodzin, które szukają nowoczesnej przestrzeni w
pobliżu natury, z szybkim dojazdem do miasta.
Zapraszamy do kontaktu – chętnie udzielimy szczegółowych
informacji i umówimy prezentację na miejscu.
Działamy na terenie całego województwa zachodniopomorskiego.
Posiadamy oddziały - w Szczecinie, Stargardzie i Szczecinku. Nasi
Doradcy bezpłatnie dojeżdżają do Klientów.
W naszym biurze możesz skorzystać z następujących usług:
- pośrednictwo w kupnie i najmie nieruchomości,
- pośrednictwo w sprzedaży i wynajmie nieruchomości,
- doradztwo finansowe,
- zarządzanie najmem,
- skup nieruchomości
- kompleksowa obsługa deweloperów.
Jesteś zainteresowany naszą ofertą? Zadzwoń do nas już dziś lub
odwiedź naszą stronę www.hestianieruchomosci.pl
Treść niniejszego ogłoszenia nie stanowi oferty handlowej w
rozumieniu Kodeksu Cywilnego. Treść ma charakter informacyjny i
zalecamy ich osobistą weryfikację. Kontaktując się z biurem Klient
wyraża zgodę na przetwarzanie danych osobowych zgodnie z przepisami
ustawy z dnia 29 sierpnia 1997 roku o ochronie danych osobowych /
Dz.U.Nr. 133 poz. 883/. Klientowi przysługuje prawo do wglądu do
swoich danych osobowych i ich aktualizacji.
Sprawdź zainteresowanie tym ogłoszeniem
Wyświetlenia
Data dodania
Ostatnio widziany
Obserwujących
Wysłane zapytania
Odsłony telefonu
Powiadom o podobnych ogłoszeniach
Lokalizacja: Zieleniewo
Kategoria: Nieruchomości » Domy » Sprzedaż
Cena: od 629000 zł do 851000 zł Powierzchnia : od 113 m2 do 153 m2
Chcę otrzymywać powiadomienia o nowych ofertach
- Wypromuj ogłoszenie
- Zgłoś naruszenie
- Drukuj ulotkę
- Edytuj/usuń ogłoszenie
- Udostępnij ogłoszenie
- Dodaj na Facebook










